AT A GLANCE

Total Sq Ft
0 K
Retail Tenants
0 +
Annual Visits
0 K
Vehicles per Day
0 K+
Trade Area Sq Mi
0 K

PROPERTY OVERVIEW

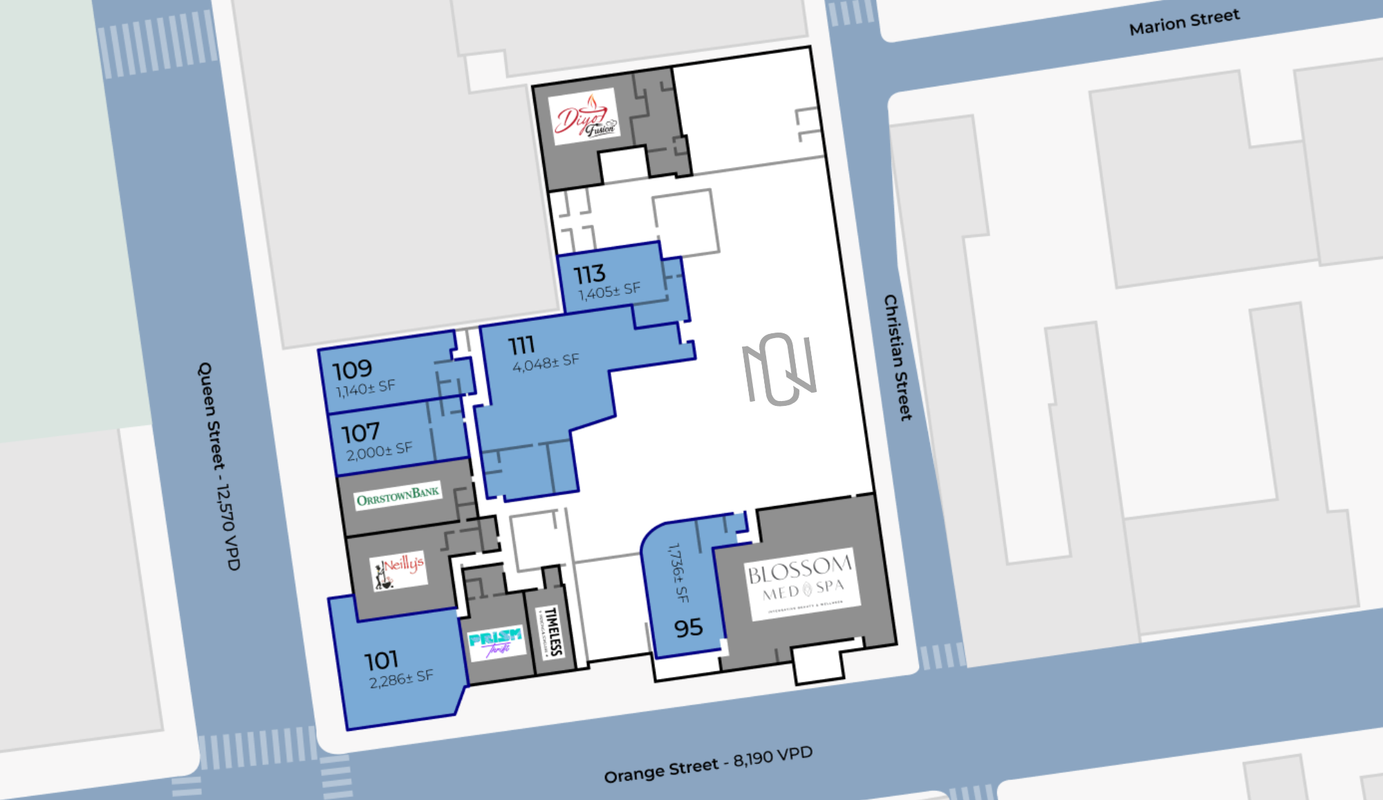
  • 101NQ is a four-story building made up of nearly 140,000 sq ft of mixed use real estate—retail, office, and residential.
  • The Row offers space for retailers, restaurants, and other service-based businesses on the ground floor.
  • Co-tenants include: Cargas Systems, DIYO Restaurant, Orrstown Bank, Blossom Med Spa, Timeless Jewelry & Piercing, Prism Thrift, and Neilly’s Pantry & Beyond.
  • Opportunity to draw from a large consumer base, including a trade area of 100.08 sq mi / 204,805 people.

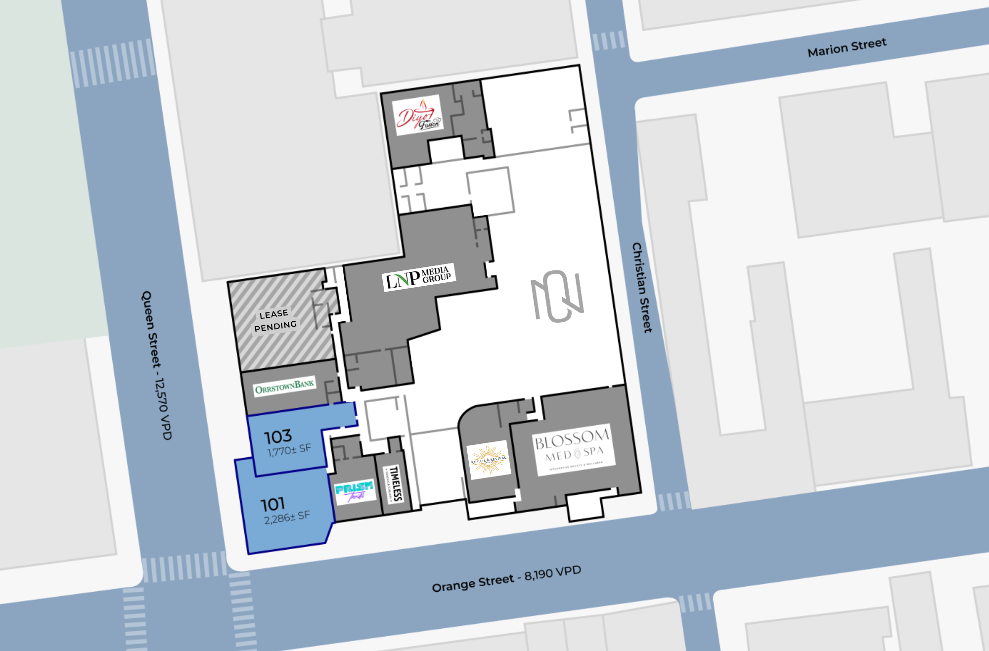
AVAILABLE UNITS

Retail opportunities ranging from 1,140 SF to 3,140 SF.

Availability: Now
Space Use: Retail

  • Finished ADA restroom
  • Prominent Orange St presence (8,190 VPD)
  • Dedicated signage

Availability: February 2026
Space Use: Retail

  • 3-compartment sink
  • ADA restrooms
  • Floor-to-ceiling windows
  • Corner location with prominent presence on:
    • N Queen St (12,570 VPD)
    • Orange St (8,190 VPD)
  • Dedicated signage

Availability: Now
Space Use: Retail

  • Existing duct for hood install
  • ADA restroom & storage room
  • Prominent N Queen St presence (12,570 VPD)
  • Dedicated signage
  • Can be combined with additional unit (109) for up to 3,140 SF of adjacent space

Availability: Now
Space Use: Retail

  • ADA restroom & storage room
  • Prominent N Queen St presence (12,570 VPD)
  • Dedicated signage
  • Can be combined with additional unit (107) for up to 3,140 SF of adjacent space

Interested in exploring our other properties in Lancaster, PA?